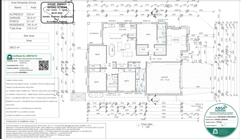
Googong

A Stunning Home in Googong.

Scroll to Top